Mirage Felt - Prisma | Pumice | 4x2 feet
Mirage Felt - Prisma | Pumice | 4x2 feet
Couldn't load pickup availability
- 30 day return & money back policy
- Tested & certified to ASTM, ISO and EN standards
- Safe packaging inclusive
About the Product
About the Product
Echsorbix® Mirage PET Acoustic Panels feature precision-cut linear grooves that combine architectural design with superior acoustic performance. Made from 9mm polyester felt, they deliver high sound absorption and modern aesthetics—perfect for living areas, offices, bedrooms, schools, home theatres, and studios.
Size & Dimensions
Size & Dimensions
Each panel measures 4x2 ft (1200 x 600 mm) with a thickness of 9mm and ±5% size tolerance. Lightweight and durable, ensuring easy installation and a premium acoustic finish.
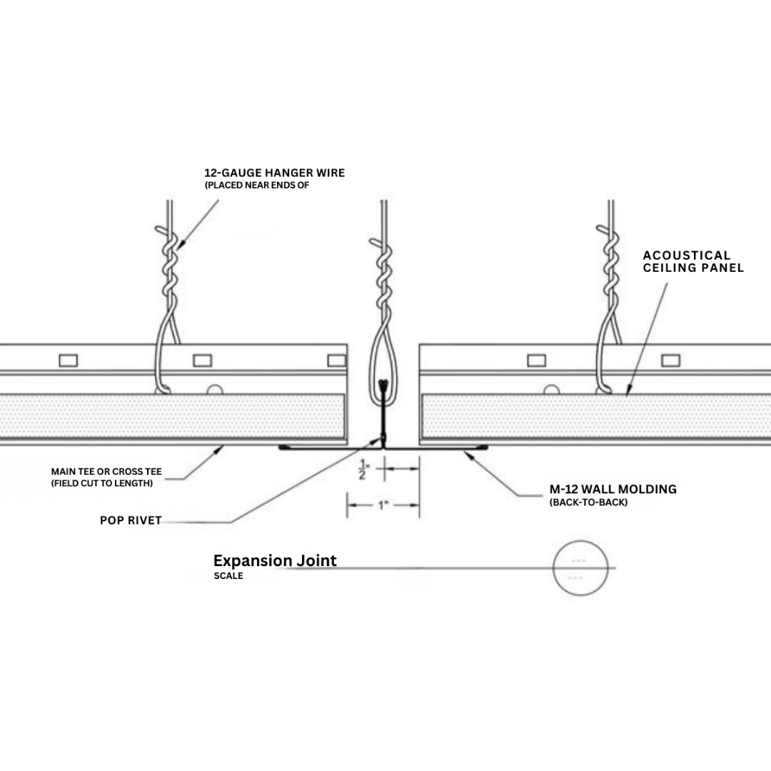
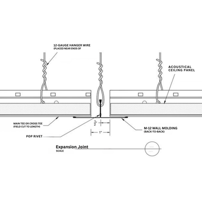
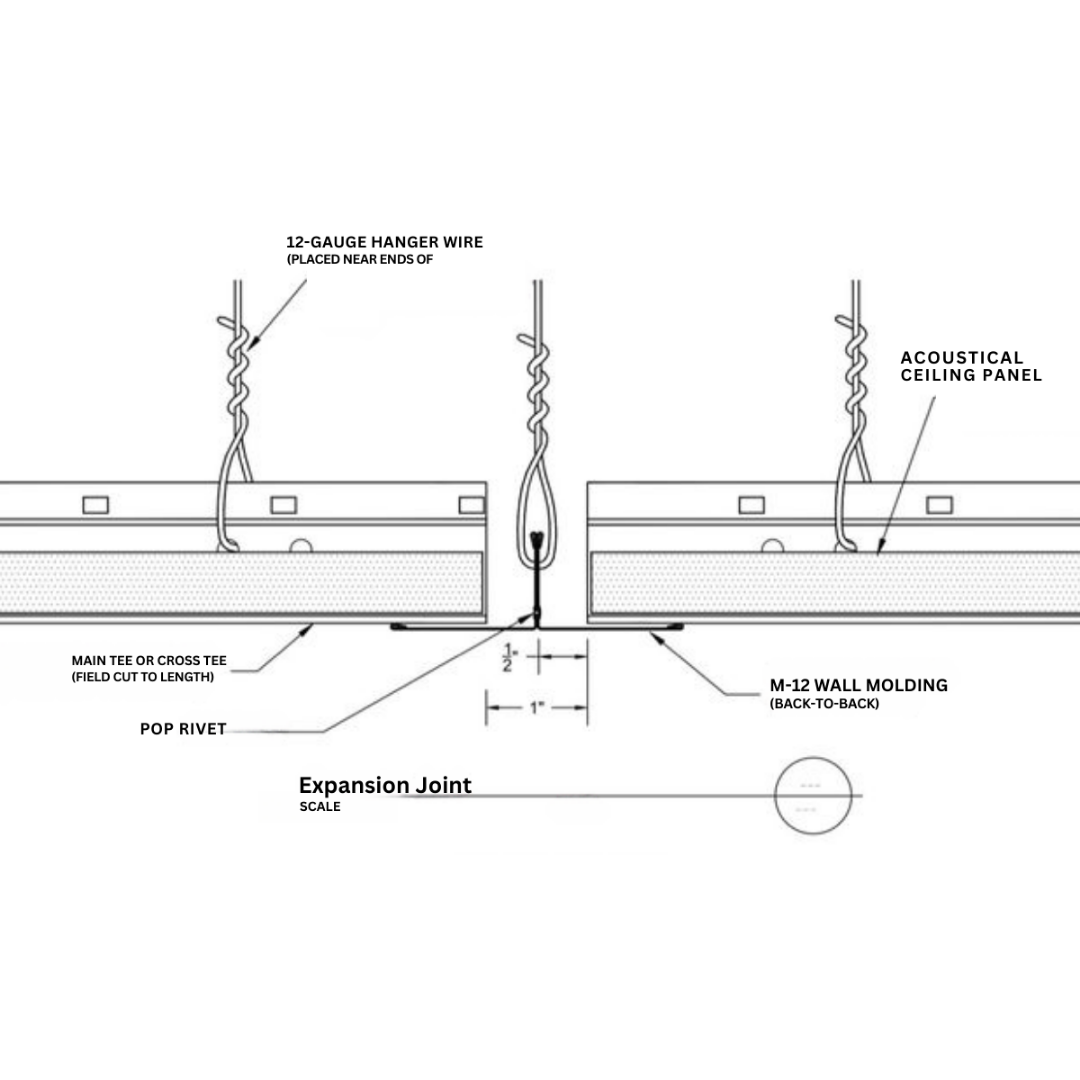
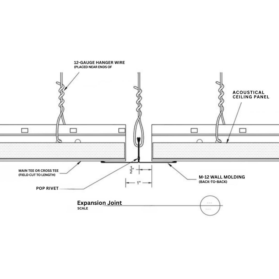
Installation Method
Installation Method
Use Turbo® SR Adhesive, double-sided tape, or flat-head nails for installation. Clean the wall surface before application. Compatible with paint, wood, metal, glass, and tiles.
Care Instructions
Care Instructions
Clean gently using a soft damp cloth or vacuum cleaner. Handle with care during installation to maintain groove alignment and surface finish.Clean gently using a soft damp cloth or vacuum cleaner. Handle with care during installation to maintain groove alignment and surface finish.
Warranty and Certification
Warranty and Certification
30-day return if unused and in original
packaging. 100% money-back guarantee for incorrect orders. Fire-rated Class A,
VOC-free, and moisture-resistant for long-lasting, safe performance.









Overjoyed Users
Exceptional Acoustic Solutions
MMT Acoustix transformed our studio with their high-performance panels and expert guidance.The difference in sound clarity was instant.Their premium build quality truly stands out in the market.
Naman Malhotra - Delhi
Guided by Experts
The consultation team understood our project requirements perfectly.They helped us choose the right materials for each room type.Professional, prompt, and knowledgeable — highly recommended.
Ranbir Mehra - Kolkata
Unmatched Product Variety
From foam tiles to wooden panels and membranes they have it all.It’s rare to see such a wide soundproofing range under one brand.Their website made selection and comparison extremely easy.
Arvind Subramanian - Bangalore
Quality Beyond Expectation
The acoustic panels not only look premium but perform brilliantly.Noise levels dropped drastically after installation.Every product delivered as promised exceptional finish and durability.
Sheezan Aziz - Abu Dhabi
Perfect Project Partner
MMT Acoustix supported us from design to installation.Their detailed BOQ and technical documentation saved our time.Truly a brand that architects and contractors can rely on.
Divya Lakshmanan - Chennai
Seamless Customer Support
From quotation to delivery, the communication was excellent.They provided real-time shipping updates and quick responses.Customer care that matches the quality of their products
Erik Johansen - Sweden
Trusted Sound Professionals
We’ve used MMT Acoustix for multiple projects over the years.Their consistency and technical expertise make collaboration effortless.They’re not just sellers they’re true soundproofing partners.
Sophie Turner - United Kingdom
Recently viewed

Mirage Felt - Prisma | Pumice | 4x2 feet